Buscar
Edificio en pozo Lacar II- Departamentos de 1 , 2 y 3 ambientes – Av Koessler – Centro
Presentado
Venta
- U$S108.948
CARACTERÍSTICAS
Código: D231
- Departamento
- Tipo
- 1
- Dormitorio
- 1
- Baño
- 34 m²
- Superficie terrestre
- 34 m²
- Superficie cubierta
Descripción
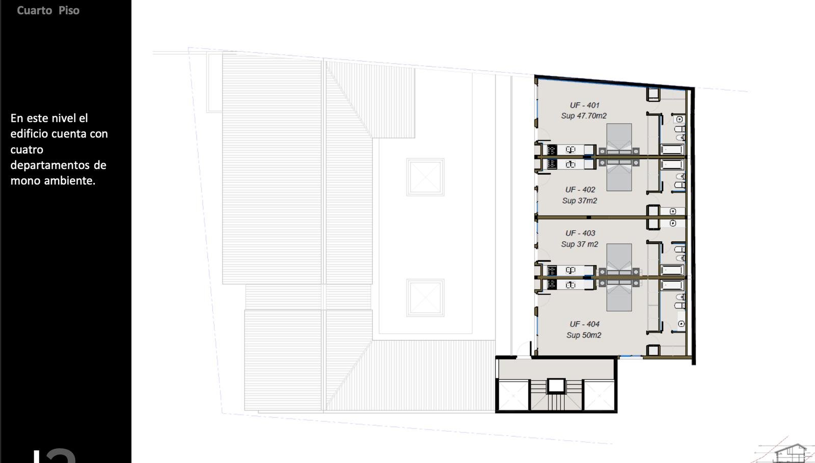
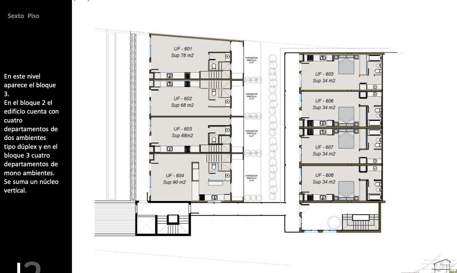
Muy lindo Edificio ubicado a 5 minutos del Casco céntrico, en la entrada de la ciudad de San Martín de los Andes. Este complejo contara con 45 Unidades funcionales y 13 cocheras. Estacionamiento para bicicletas, bauleras y asensor. Edificio con gimnasio y espacio de coworking.
Excelente ubicación y orientación norte, soleado todo el año, vistas abiertas a la montaña. Unidades con espacio verde propio
Ideal para vivienda permanente o renta.
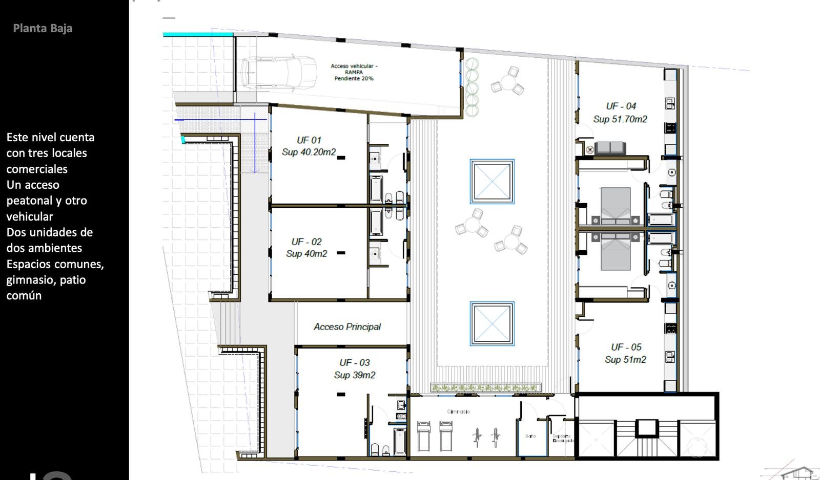
En Planta baja habrán 3 locales comerciales.
El edificio contará en su frente con espacios de estacionamiento de cortesía, destinados a uso común, facilitando el acceso y la comodidad para residentes y visitantes.
Unidades funcionales
Características generales
Las unidades estarán construidas con sistema de steel framing portante, con aislación termoacústica e ignífuga mediante celulosa proyectada, complementado con estructura de hormigón armado y hormigón celular. Las carpinterías exteriores serán de PVC con doble vidriado hermético.
El revestimiento exterior combinará material texturado plástico, madera natural tratada y piedra natural.
Las cocinas contarán con mesadas de granito negro Brasil, muebles en melamina, bacha marca Johnson o similar y griferías FV. En los monoambientes se instalarán anafes y cocinas eléctricas; en el resto de las unidades, cocinas a gas con horno.
Los baños estarán equipados con artefactos sanitarios Ferrum o similar, griferías FV y mampara de bañera.
Los pisos serán de porcelanato. Las paredes y cielorrasos se terminarán con pintura látex interior de primera calidad. En las unidades de planta alta, los cielorrasos y entrepisos estarán revestidos en madera de eucalipto.
La calefacción será por losa radiante a gas, con provisión de agua caliente sanitaria mediante caldera mural individual de doble servicio.
Financiación flexible durante la obra.
Entrega 2027
Detalles
-
Código D231
-
Precio U$S108.948
-
Superficie Cubierta 34 m²
-
Superficie Total 34 m²
-
Dormitorio 1
-
Ambientes 1
-
Baño 1
-
Operación Venta
-
Tipo de Propiedad Departamento
Propiedades similares
Departamento de 2 dormitorios de 59m2 con balcon – Gral Roca al 800 – Centro
- U$S190.000
- IDENTIFICACIÓN: D249
- Camas: 2
- Baño: 1
- 61.74 m²
Inspira – Departamentos en pozo de 3 y 4 ambientes con jardín o terraza y amenities – Desde 95 m2 – Cnel Diaz y R. Roca – Centro
- U$S303.000
- IDENTIFICACIÓN: D277
- Camas: 2
- Balneario: 2
- 95 m²
Excelente departamento de 1 dormitorio con cochera 34 m2 – Edificio con pileta Gral Roca al 200- Centro
- U$S220.000
- IDENTIFICACIÓN: D276
- Cama: 1
- Baño: 1
- 34 m²
Departamento de un dormitorio con Balcon y cochera – Gral Villegas 1000, Centro
- U$S250.000
- IDENTIFICACIÓN: D255
- Cama: 1
- Baño: 1
- 57 m²
QUIERO MÁS
INFORMACiÓN