Buscar
D256 – Departamento de un dormitorio a estrenar, con patio y cochera 49 m2- R. Roca al 700 – Centro
- U$S200.000
- Inicio
- Departamento
- D256 – Departamento de un dormitorio a estrenar, con patio y cochera 49 m2- R. Roca al 700 – Centro
D256 – Departamento de un dormitorio a estrenar, con patio y cochera 49 m2- R. Roca al 700 – Centro
- U$S200.000
CARACTERÍSTICAS
- Departamento
Tipo de propiedad
- 1
Dormitorio
- 1
Baño
- D256
Código
- 68
Lote m²
- 49
m²
Descripción
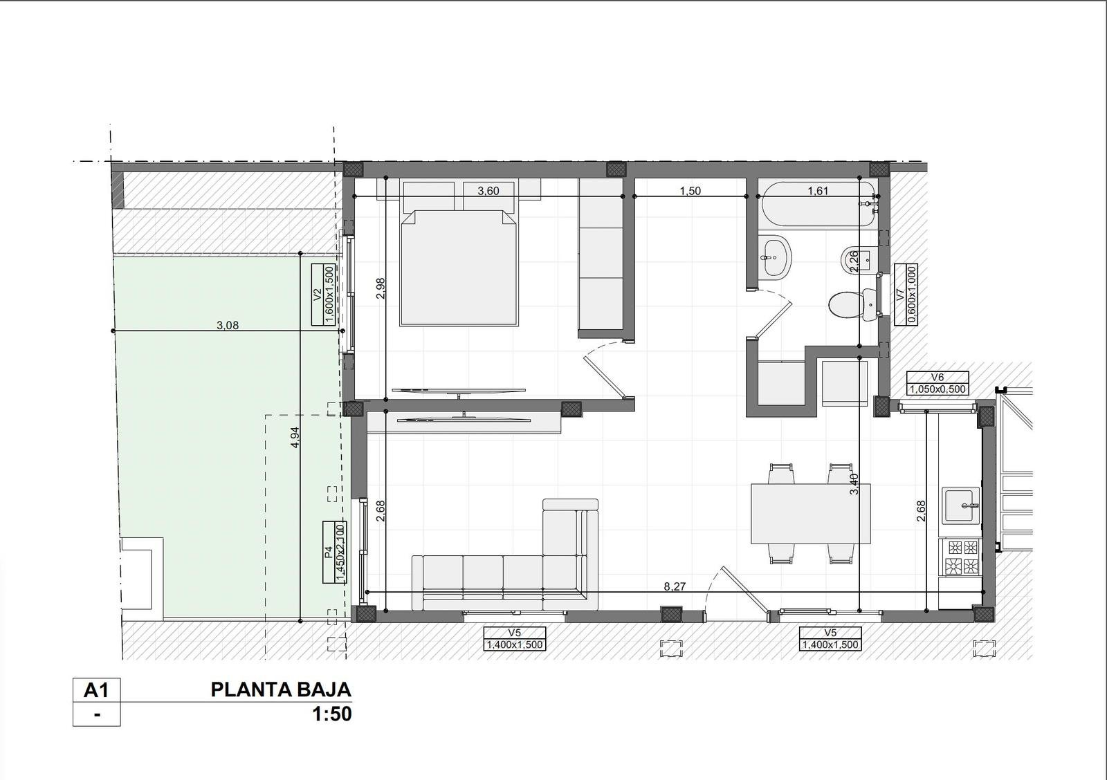
Excelente departamento a estrenar en el centro. Con patio y cochera
Moderno departamento de un dormitorio ubicado en planta baja al frente, que cuenta con patio privado y cochera. Living con cocina-comedor integrados, un amplio dormitorio con placard grande, baño completo y un ambiente adicional ideal para escritorio, vestidor o espacio de trabajo. Construcción tradicional.
49 m2 cubiertos y 19 m2 de jardín.
Detalles
-
Código D256
-
Precio U$S200.000
-
Superficie Cubierta 49 m²
-
Superficie Total 68 m²
-
Dormitorio 1
-
Ambientes 2
-
Baño 1
-
Garage 1
-
Operación Venta
-
Tipo de Propiedad Departamento
Propiedades similares
Departamento de 1 dormitorio – 46 m2 – Gral Roca al 1300
- U$S185.000
- IDENTIFICACIÓN: D270
- Baño: 1
- 46 m²
Departamento de 1 dormitorio con cochera – 50m2 – Av San Martin al 1300 – Centro
- U$S175.000
- IDENTIFICACIÓN: D269
- Cama: 1
- Balneario: 2
- 50 m²
Excelente departamento de 2 dormitorios con costa de arroyo – 72 m2 – El Bosque y Cipreses – Centro
- U$S275.000
- IDENTIFICACIÓN: D268
- Camas: 2
- Baño: 1
- 112 m²
Departamento 1 dormitorio 48 m2 – 3 de Caballeria al 400 -Centro
- U$S140.000
- IDENTIFICACIÓN: D267
- Cama: 1
- Baño: 1
- 48 m²
QUIERO MÁS
INFORMACiÓN